$985,000

2112 Avenue B Bradenton Beach, FL 34217 Residential - Single Family Active

  • 2112 Avenue B, Bradenton Beach, FL 34217 Main Photo
Virtual Tour

51 Total Photos [Click to View All]

Description

Welcome to your slice of paradise in beautiful Bradenton Beach! This elevated 2-bedroom, 2-bath home offers the perfect blend of coastal charm and peace of mind - just one block from the sugar-sand beaches and breathtaking Gulf sunsets.Built for durability and comfort, the home features impact windows (2019) and a sturdy metal roof, providing added protection and long-term value. Even better, the property sustained no damage from Hurricanes Milton or Helene, giving buyers extra confidence in its resilience.The elevated design not only enhances storm protection but also offers additional storage and usable space below. Inside, you'll find a bright and airy layout filled with natural light, ideal for full-time living, a vacation getaway, or an income-producing rental.Enjoy morning walks to the beach, evening sunsets, and the relaxed island lifestyle - all while being close to local dining, shopping, and entertainment.Don't miss this opportunity to own a move-in ready coastal retreat in one of Florida's most desirable beach communities!

Property Highlights

Property Type: Residential - Single Family
Cooling: Central Air
Garage: 4 car attached
Heating: Central
Lot Size: 0.11 Acres
Roof Type: Metal
Stories: 2.0
Taxes: $3,606
Year Built: 1993

General Information

Bedrooms: 2
Bathrooms: 2 Full
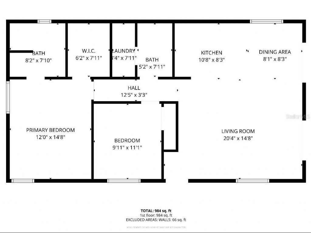
Sqft: 1,056
County: Manatee
Subdivision: ILEXHURST
MLS ID:

Amenities

Ceiling Fans(s)
High Ceilings
Balcony
French Doors

Property Features

Appliances: Dishwasher, Dryer, Range, Refrigerator, Washer
Days on Site: 37
Directions: Cortez Rd heading West, take a right onto Gulf Drive N, turn right onto 22nd St N, Turn Right onto Avenue B, arrive at 2112 Avenue B
Exterior: Stucco
Flood Zone Code: AE
Flooring: Carpet, Ceramic Tile
Foundation: Stilt/On Piling
Home Warranty Y/N: No
Listing Terms: Cash, Conventional
Lot Dimensions: 0.11
Ownership: Fee Simple
Property Attached Y/N: No
Property Sub-Type: Single Family Residence
Sewer: Public Sewer
Showing Instructions: Supra Lock Box
Special Sale Provisions: None
Utilities: Cable Connected, Electricity Connected, Sewer Connected, Water Connected
Water: Public
Water Access Y/N: No
Zoning: R2
$985,000
2beds
2.0baths
1,056sqft
4cars
Featured Listing Active
BEDS2 BATHS2 full SQUARE FEET1,056 MLS#A4682824
STATUSActive PROPERTY TYPEResidential - Single Family SUBDIVISIONILEXHURST

Get in Touch

Contact an agent to learn more about

2112 Avenue B, Bradenton Beach, FL 34217.

Contact Form

Preferred Communication Method:

Estimate Your Payment

Estimated Payment

$ 3,910.03 per month $3,322.24 Principal & Interest $300.50 Property Tax $287.29 Homeowner's Insurance

Change Payment Information

%
years/fixed
yearly
yearly (est.)
(Payments are an estimate and may vary by lender)

About this area

Florida/Bradenton Beach
Bradenton Beach

View Listings

About Bradenton Beach

Bradenton Beach, FL is a beach community with white, sandy beaches and an easy going lifestyle. The city of Bradenton Beach is an island community on Anna Maria Island's southern end. With an estimated population of around 1,200 people and average temperatures of a comfortable 79 degrees, Bradenton Beach seems like life in paradise to many. If you are considering homes in Bradenton Beach, Florida, you could be enjoying that taste of paradise all year long.

Learn More About Living in Bradenton Beach, Florida

About this community

Login to My Homefinder

Pixel